Sanierung: Haus Daşyürek

Das Gebäude befindet sich im Ankaraner Stadtteil Çayyolu, einem Gebiet, das überwiegend von freistehenden Wohnparzellen geprägt ist, und trägt mit seiner Fassadengestaltung in Material, Farbe und architektonischem Ansatz die charakteristischen Merkmale der Entstehungszeit. Unser grundlegender Ansatz bei der Fassadenerneuerung bestand darin, die bestehende architektonische Identität des Gebäudes und die charakteristischen Merkmale seiner Epoche weitestgehend zu bewahren und zugleich eine architektonische Sprache zu entwickeln, die mit modernen ästhetischen Erwartungen im Einklang steht und dem Bauwerk ein innovatives, zeitgemäßes Erscheinungsbild verleiht.

Städtischer Kontext
Gestalt und Funktion im Wandel
Designteam: A. COSGUN, B. EGLEN, C GOENUELALAN
Partnerschaften: Pozitif Architekten
Standort: Türkei/Ankara
Typologie: Wohnen
Disziplinen: Architektur , Innenarchitektur
Status: Vollendet , Designvorschlag
Entwurfsansatz
Bei der Fassadengestaltung stand der ausgewogene Einsatz der drei Hauptmaterialien Stein, Holz und Glas im Vordergrund. Diese Kombination brach die monolithische Wirkung des bestehenden Bauwerks auf und verlieh ihm durch eine natürliche und zugleich moderne Gestaltung einen dynamischen und visuell bereichernden Charakter. 

Die durchgehende Verwendung von Holz unter den großzügigen Dachüberständen erzeugte eine visuelle Einheit und eine warme Atmosphäre im gesamten Gebäude. Dieses Detail ermöglichte fließende Übergänge zwischen den unterschiedlichen Fassadenelementen und bereicherte die äußere Raumwahrnehmung.
Eine der wichtigsten Eingriffe in die Fassadengestaltung war die Neukonzeption der Fensterproportionen, die die Raumwirkung im Inneren direkt beeinflussten. Diese Veränderung optimierte nicht nur den natürlichen Lichteinfall, sondern verstärkte auch die moderne Ästhetik der Fassade und definierte die Beziehung zwischen Innen- und Außenräumen neu.

Ein weiterer entscheidender Aspekt der Fassadengestaltung war die Stärkung der Eingangssituation. In ihrem ursprünglichen Zustand wirkte der Eingang diffus und wenig prägnant. Mit der neuen Gestaltung wurde er nicht nur als Zugang verstanden, sondern als ein „Übergangsraum“ in der Abfolge von geschlossenen, halb-offenen und offenen Bereichen, der den Nutzer auf den Außenraum vorbereitet. Auf diese Weise verwandelte sich der Eingang in einen repräsentativen, einladenden und markanten Auftakt, dessen sorgfältig durchdachte architektonische Details ein starkes Gefühl von Gastlichkeit und Wertigkeit vermitteln.
Ausgewählte Projekte
Initiativen mit Bedeutung
Berufsschule Çilimli
Im Landkreis Çilimli in der Provinz Düzce wird derzeit der Bau unseres Projekts fortgesetzt, dessen Finanzierung von der Düzce Universität übernommen wird. Die Berufsschule Çilimli entsteht auf einem 7.000 m² großen Grundstück und umfasst eine beb...
Mehr lesen
Işıklar Kultur und Sporteinrichtung
Das Projekt befindet sich im Stadtteil Hocalıhan der Gemeinde Selçuklu in der Provinz Konya. Die Kultur- und Sportanlage Işıklar besteht aus zwei Untergeschossen, einem Erdgeschoss und zwei Obergeschossen mit einer Grundfläche von 463,16 m² und ei...
Mehr lesen
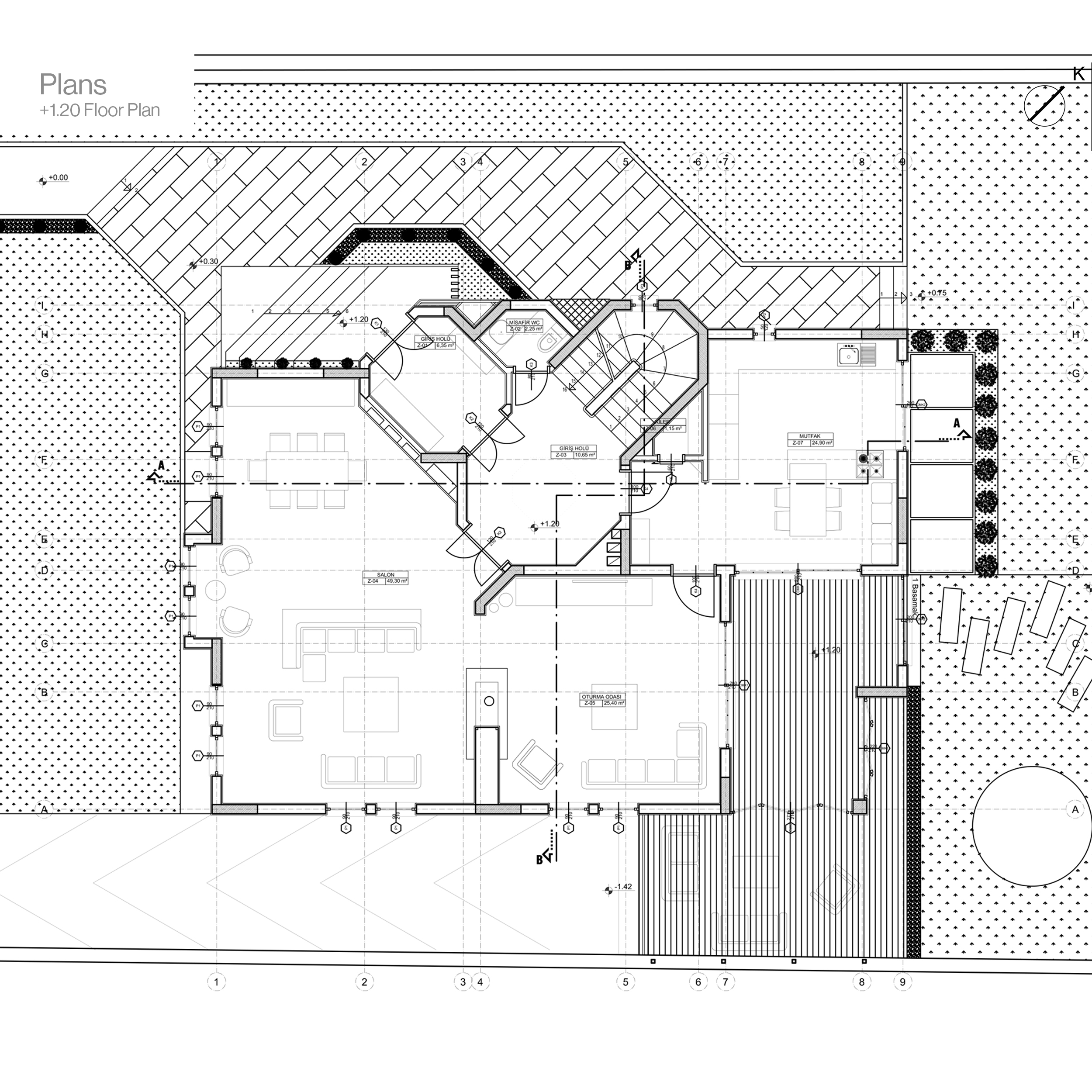
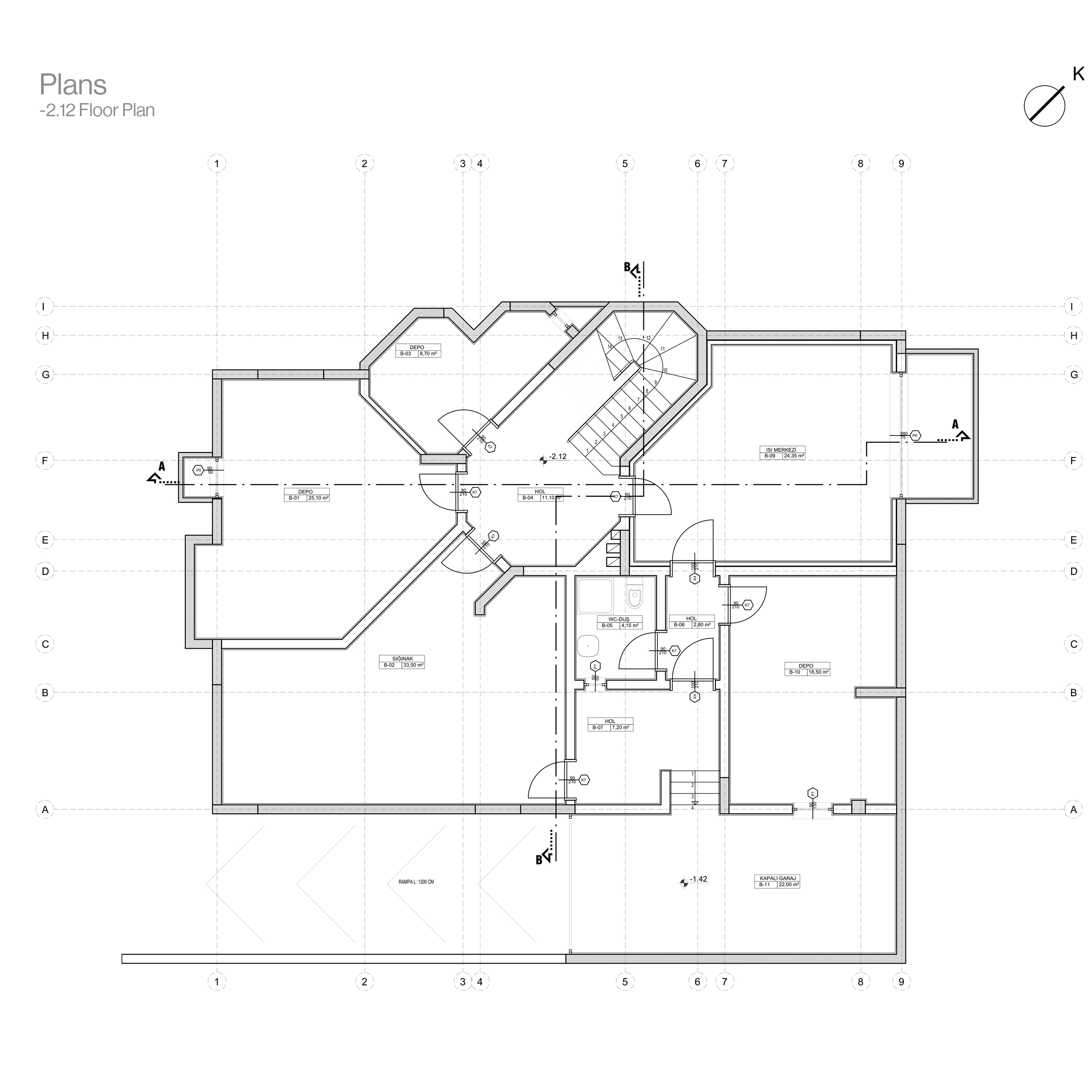
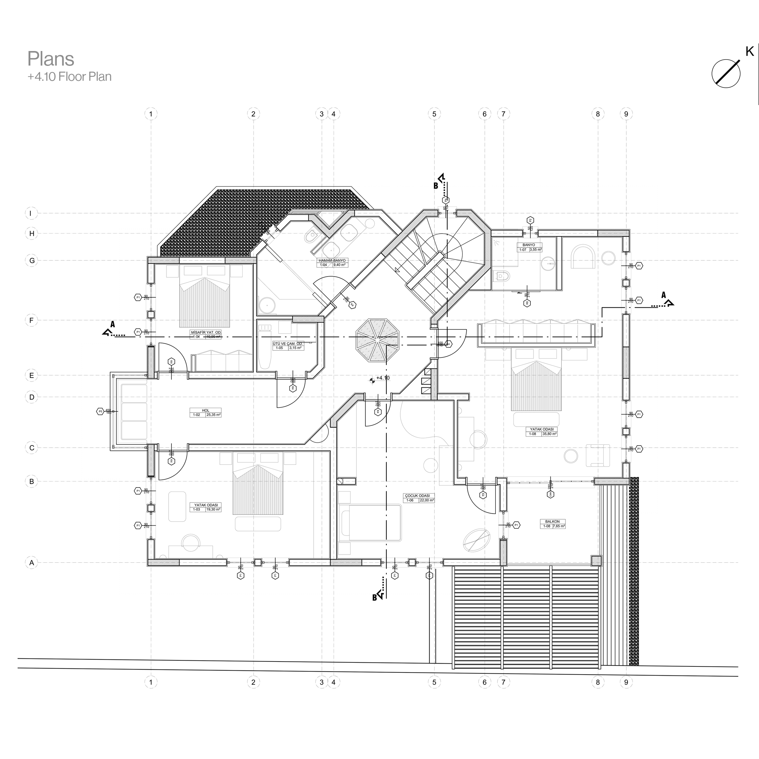
Haus Daşyürek / Innenarchitektur
In einem ruhigen Stadtteil Ankaras, Çayyolu, entwickelten wir ein umfassendes Innenarchitekturprojekt für unseren Auftraggeber, der gemeinsam mit seiner Mutter und Tochter in diesem Haus wohnen wird, dessen Fassadensanierung wir ebenfalls betreute...
Mehr lesen