Işıklar Mahalle Konağı

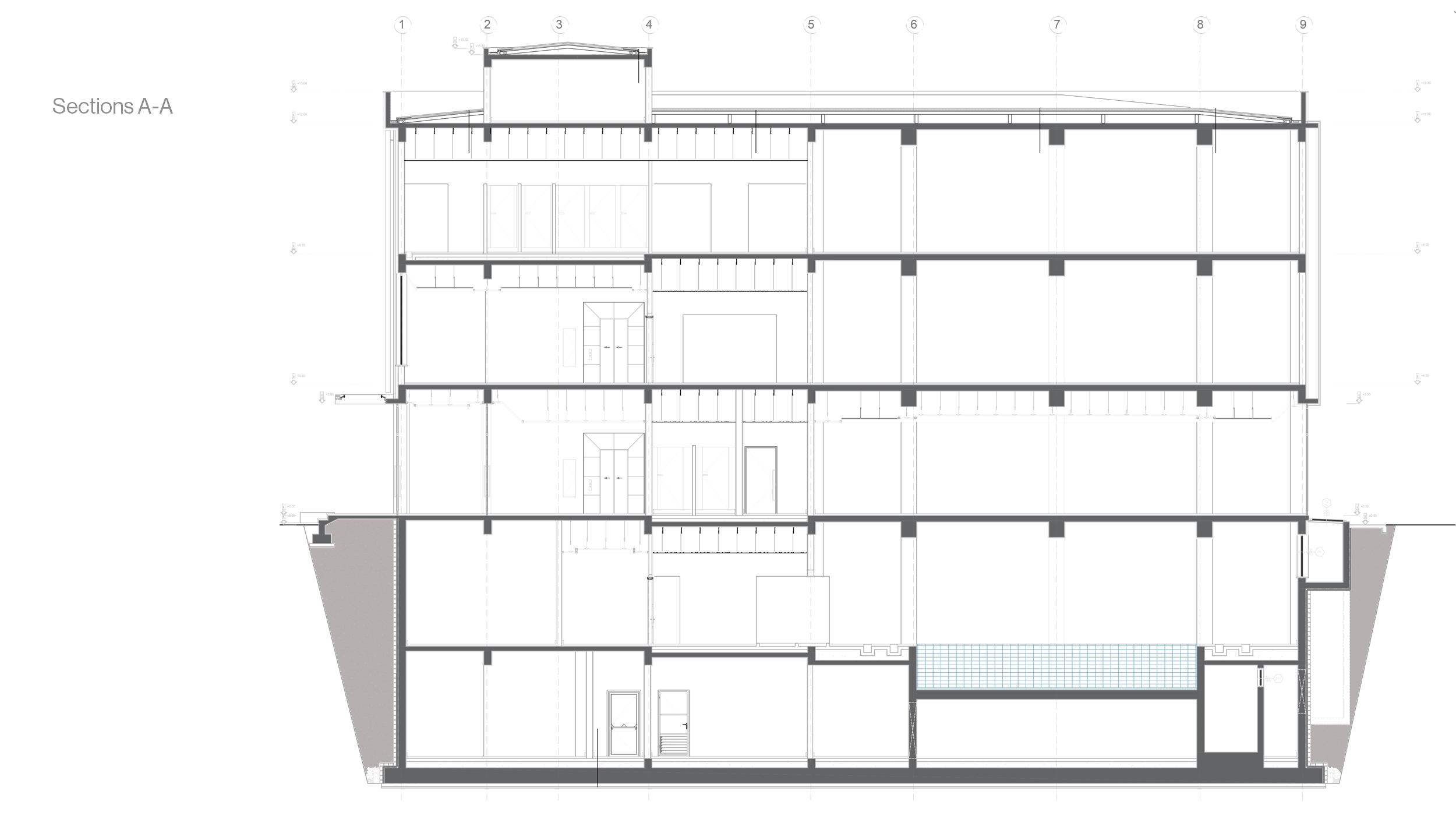
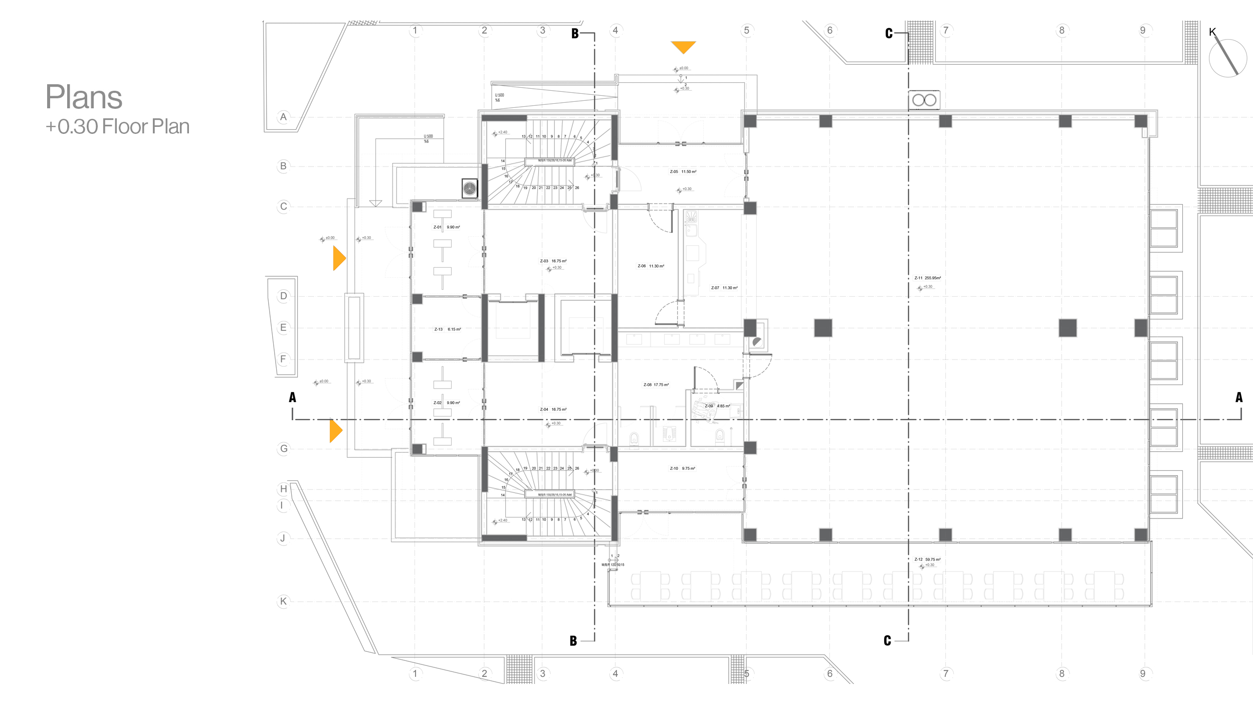
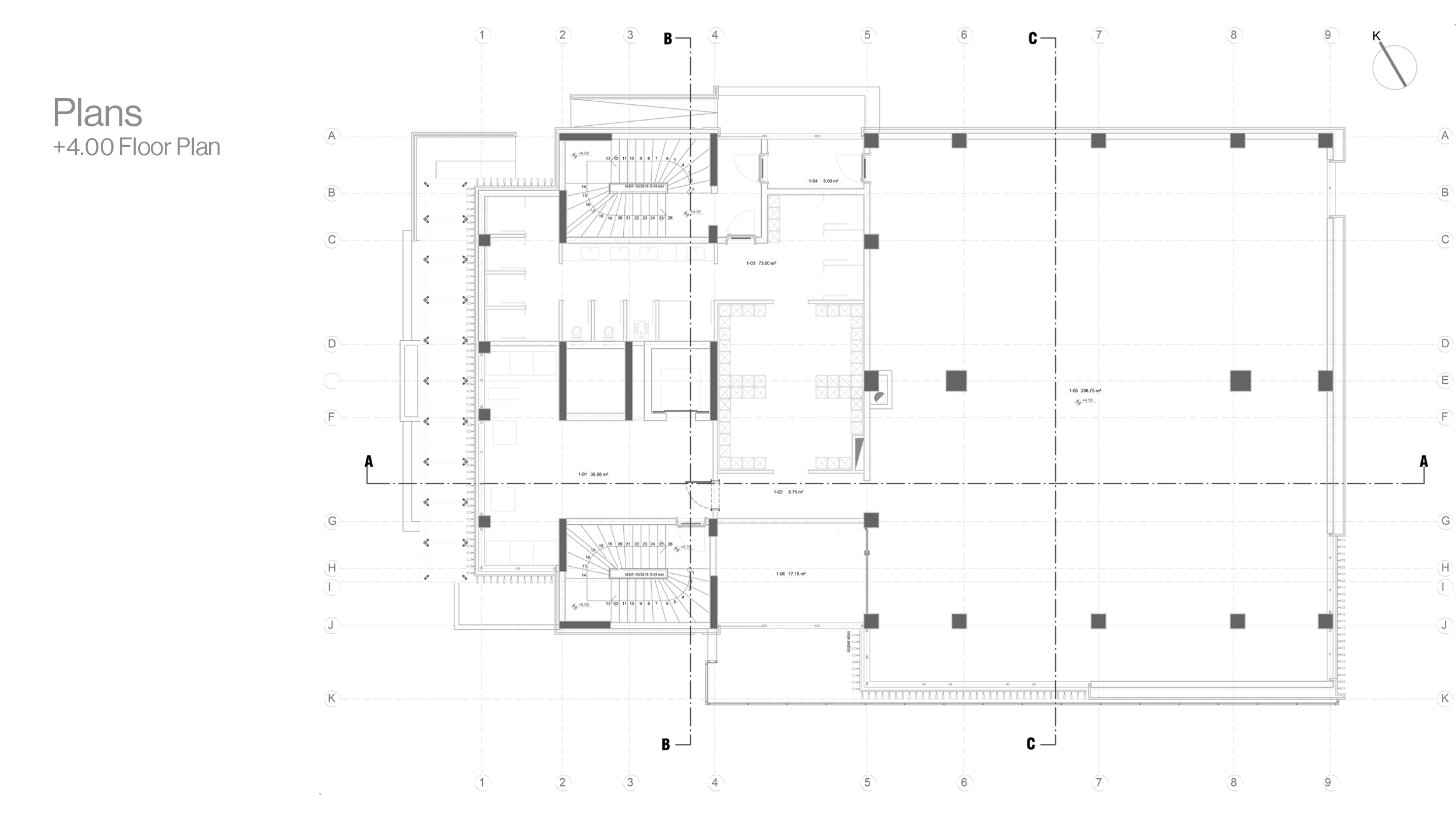
Proje, Konya ili, Selçuklu Belediyesi'ne bağlı Hocalıhan Mahallesi'nde yer almaktadır. Işıklar Kültür ve Spor Tesisi olarak isimlendirilen proje 2019 yılında, 463,16 m² taban alanı üzerine planlanmış olup, 2.631,54 m² toplam inşaat alanına sahiptir. Yapı ile ilgili tüm planlama ve ihale hazırlık çalışmaları ekibimiz tarafından gerçekleştirilmiştir. Bina, iki bodrum kat, bir zemin kat ve iki normal kattan oluşmaktadır. Bu tesisin hedeflenen hizmet amacı, mahalle ve bölge ölçeğinde kullanıcılarını spora teşvik etmek, düzenli kültürel ve spor etkinlikleri ile de bölgesel kullanıcılara erişilebilir kültürel ve spor olanakları sunmaktır. 

Proje Künyesi
Tasarım ve Fonksiyon Kurgusu

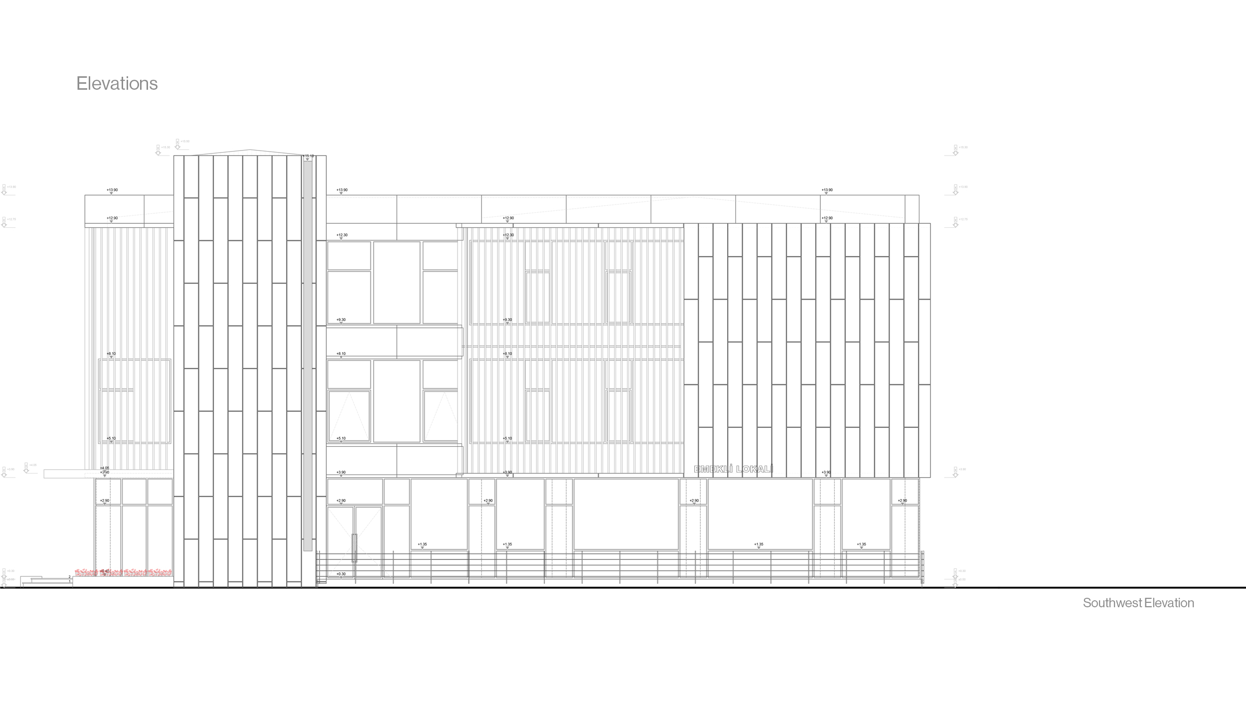
Yapının tasarım sürecinde, işveren kurumun özel talepleri, mimari kararların şekillenmesinde belirleyici olmuştur. Bu taleplerden biri, tesis bünyesindeki farklı fonksiyon alanlarına belirli kullanıcı gruplarının erişiminin sağlanması, ancak bu kullanıcıların belirli bölümlerde karşılaşmalarının önlenmesiydi. Bu doğrultuda, tesisin normal katlarında erkek ve kadın kullanıcılar için farklı katlarda planlanan spor alanları tasarlanmış ve bu bölgelere erişim tamamen bağımsız sirkülasyon sistemleri üzerinden sağlanmıştır. Söz konusu alanlar, grup egzersizleri, fitness ve yoga gibi çeşitli spor aktivitelerine uygun şekilde planlanmıştır.

İkinci bodrum katta teknik hacimler konumlandırılmış, birinci bodrum katta ise yüzme havuzu ile buna hizmet eden yardımcı mekânlar yerleştirilmiştir.

Zemin katta, sosyal etkileşimi teşvik eden ve mahalle sakinleri için bir buluşma noktası olarak işlev gören bir “kulüp” alanı tasarlanmıştır. Bu alan, “Emekliler Konağı” olarak adlandırılmıştır. Bu mekân ile amaçlanan; tesisin spor faaliyetlerinden yararlanan kullanıcıların yanı sıra, mahalle sakinlerinin bir araya gelerek kaliteli zaman geçirmelerine ve ortak sosyal aktiviteler gerçekleştirmelerine imkân tanımaktır.

İşveren kurum, spor ve kültürel faaliyetleri toplumun geniş kesimine yayarak, hizmet verdiği topluluğu fiziksel ve ruhsal açıdan daha sağlıklı bir yaşam tarzına kavuşturmayı görevlerinden biri olarak değerlendirmektedir. Tasarlanan Işıklar Mahalle Konağı Projesi, Selçuklu Belediyesi Mahalle Konakları Projeleri dizisinin bir parçası olup, Konya Selçuklu Belediyesi’nin Kültür ve Spor Tesisleri yatırım programında yer almaktadır. Projenin yakın gelecekte inşaat sürecine başlanması planlanmaktadır.
Seçilmiş Projeler
Anlamlı Girişimler
Banja Luka Multifunctional Hall
Proje, Banja Luka’nın gelişen, dinamik ve modern karakterini yansıtan, kentsel yaşamın çekim merkezlerinden biri olarak tasarlanmıştır. Bölgenin kentsel kimliğini geliştirme vizyonunun başlangıç adımlarından biri olarak değerlendirilen proje, bu...
Devamını Oku
Konya Sporcu Yetiştirme Merkezi
Toplam 20.360 m² kullanım alanına sahip olan kompleks, Konya-Selçuklu Belediyesi’nin ihtiyaçları doğrultusunda, 38.862 m²’lik arsa üzerinde Olimpiyat Oyunları için bir spor eğitim merkezi olarak tasarlanmıştır. Proje; spor, idari ve konaklama biri...
Devamını Oku
Kaynaşlı Yüksekokulu
Kaynaşlı Meslek Yüksekokulu, Düzce Üniversitesine bağlı olarak Düzce ili sınırları içerisindeki Kaynaşlı ilçesinde konumlanmaktadır. Projenin belirleyici karakterlerinden biri, düşük karbon ayak izi ve y...
Devamını Oku