Çilimli Yüksekokulu

Düzce İli sınırlarında Çilimli ilçesinde planlanan proje, Düzce Üniversitesi tarafından yatırımı üstlenilmiş olup, tüm planlama sürecini ekibimiz üstlenmiştir. Çilimli Meslek Yüksekokulu, 7.000 m²'lik arsa üzerinde 1.900 m²'lik bir alanı kaplamaktadır.

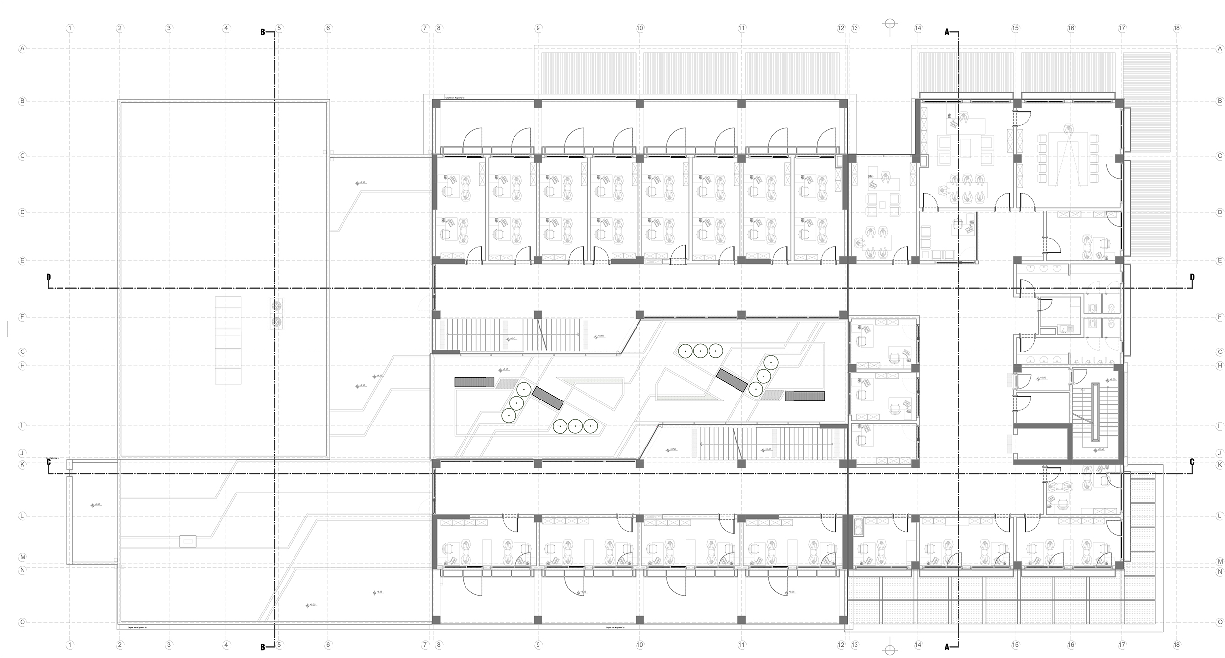
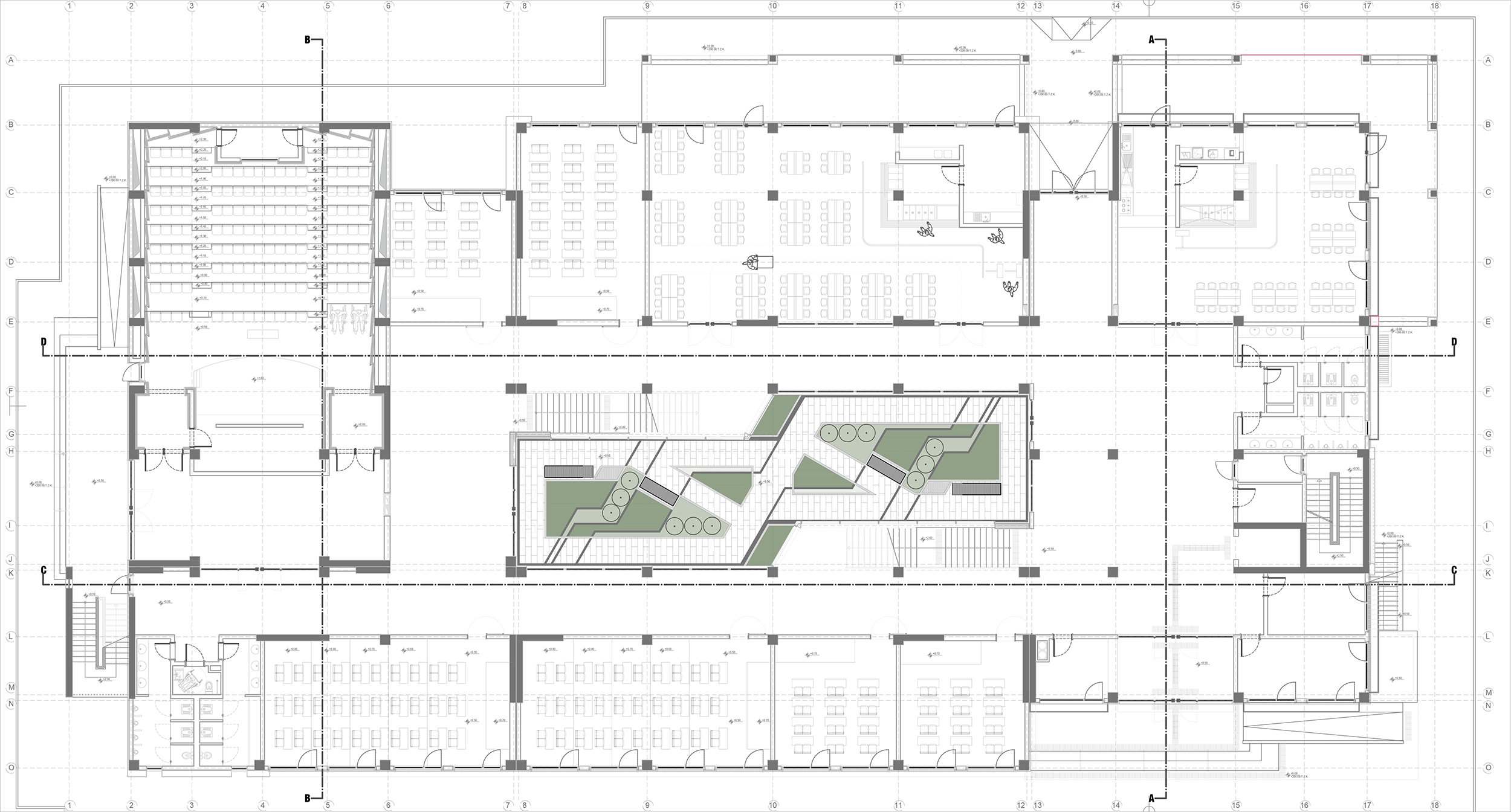
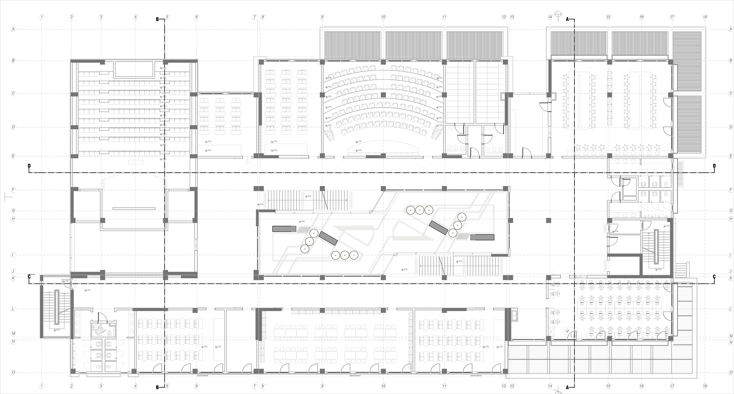
Projemiz kapsamında 10 derslik, iki atölye ve iki laboratuvar bulunmaktadır, bu birimler modern eğitim olanaklarının tamamına sahip olacak şekilde tasarlanmıştır. Eğitim birimleri, 100 kişilik bir oditoryum ve 136 kişilik çok işlevli bir salon ile tamamlanmıştır. Tüm mekanlar, merkezi bir konumda bulunan güçlü bir sirkülasyon ağı ile birbirine bağlanmaktadır.

Proje Künyesi
İşlevler Hiyerarşisi
Kat planları, projenin ana fonksiyonları arasında bağlantı görevi gören bir avlu etrafında düzenlenmiştir. Yapının merkezinde yer alan Avlu, yalnızca zengin bir görsel etkileşim alanı değil, aynı zamanda tesis kullanıcıların keyifli zaman geçirebildikleri önemli bir buluşma mekanı olarak tasarlanmıştır.

Binanın ikinci katındaki akademik birimler, toplantı odaları ve yönetim birimleri gibi alanlara düzenli bir şekilde doğrudan bağlıdır. Yapının bu katında yer alan, hem akademisyenler hem de öğrenciler tarafından kullanılmak üzere çekici bir şekilde tasarlanmış peyzajlı bir teras bulunmaktadır. Aynı zamanda geniş bir doğa panoramasına sahip teras, kapalı alan-açık alan ilişkisini güçlendirecek, kullanıcılara ferah ve sakin alanlar sunacaktır. Proje, temiz hava sirkülasyonunu ve doğal ışığın verimliliğini en üst düzeye çıkarmayı amaçlamaktadır.
Sürdürülebilirlik ve Çevresel Yaklaşım
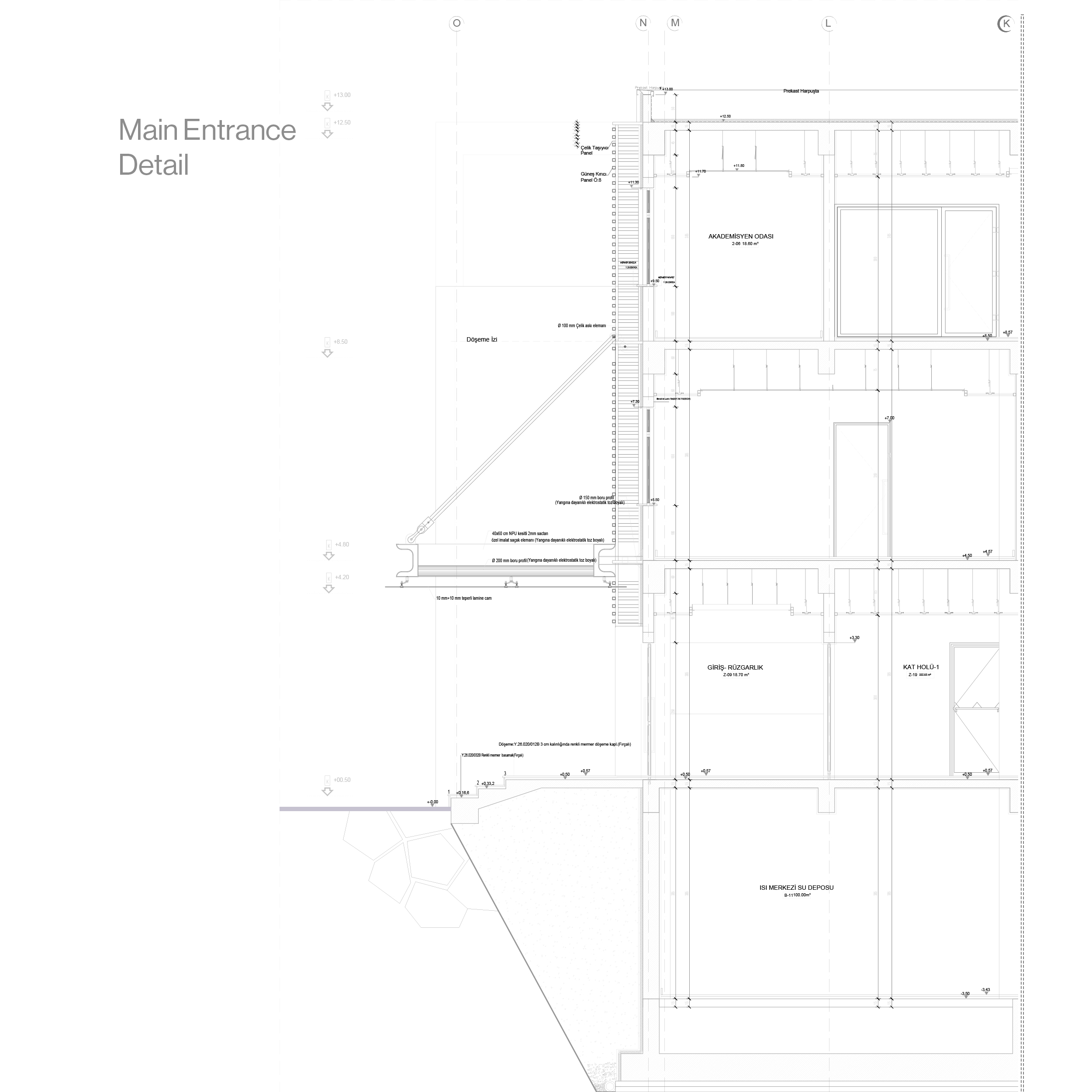
Arsanın yapısına ve tasarım girdilerine bağlı olarak genel derslikler Doğu-Batı aksı üzerinde yer almaktadır. Bu sebeple güneşin sınıflar üzerindeki olumsuz etkilerini azaltmak, güneş ışınlarının kontrollü biçimde iç mekana alınabilmesi için güneş-kırıcı cephe malzemeleri kullanılmış ve kullanılan malzemelerin sürdürülebilir yapı malzemelerinden yapılmış olmasına dikkat edilmiştir. Bununla birlikte, seçilen cephe malzemeleri tasarımın modern ve yatay çizgilerini vurgulamaktadır.

Ayrıca, zemin katta avluya ve dış alana doğrudan bağlanan ve uygun hava koşullarında iç ve dış mekanlar arasındaki bağlantıyı güçlendirecek bir yemekhane ve kantin bulunmaktadır. Bu mekanlar, öğrencilerin ders aralarında keyifli vakit geçirmelerini sağlamada yardımcı olacaktır. Yapı bölgede taşıdığı tasarım özellikleri ile de bir ilk olma özelliğine de sahiptir.
Seçilmiş Projeler
Anlamlı Girişimler
Banja Luka Multifunctional Hall
Proje, Banja Luka’nın gelişen, dinamik ve modern karakterini yansıtan, kentsel yaşamın çekim merkezlerinden biri olarak tasarlanmıştır. Bölgenin kentsel kimliğini geliştirme vizyonunun başlangıç adımlarından biri olarak değerlendirilen proje, bu...
Devamını Oku
Işıklar Mahalle Konağı
Proje, Konya ili, Selçuklu Belediyesi'ne bağlı Hocalıhan Mahallesi'nde yer almaktadır. Işıklar Kültür ve Spor Tesisi olarak isimlendirilen proje 2019 yılında, 463,16 m² taban alanı üzerine planlanmış olup, 2.631,54 m² toplam inşaat alanına sahipti...
Devamını Oku
Kaynaşlı Yüksekokulu
Kaynaşlı Meslek Yüksekokulu, Düzce Üniversitesine bağlı olarak Düzce ili sınırları içerisindeki Kaynaşlı ilçesinde konumlanmaktadır. Projenin belirleyici karakterlerinden biri, düşük karbon ayak izi ve y...
Devamını Oku