Kaynaşlı Yüksekokulu

Kaynaşlı Meslek Yüksekokulu, Düzce Üniversitesine bağlı olarak Düzce ili sınırları içerisindeki Kaynaşlı ilçesinde konumlanmaktadır. Projenin belirleyici karakterlerinden biri, düşük karbon ayak izi ve yenilenebilir enerji kaynaklarının kullanımına yönelik önerilerin bütünleştiği, sürdürülebilirlik odaklı tasarım yaklaşımı olmuştur.

Sosyal ve kültürel etkinliklere yönelik tesisler tasarımın temel bileşenlerinden biri olarak ele alınmış; spor aktiviteleri ve kamusal kullanımlara imkân tanıyan çevresel düzenlemelerle yapı kompleksi bütüncül bir kimlikle zenginleştirilmiştir.


Proje Künyesi
Tasarım ve Fonksiyon Kurgusu
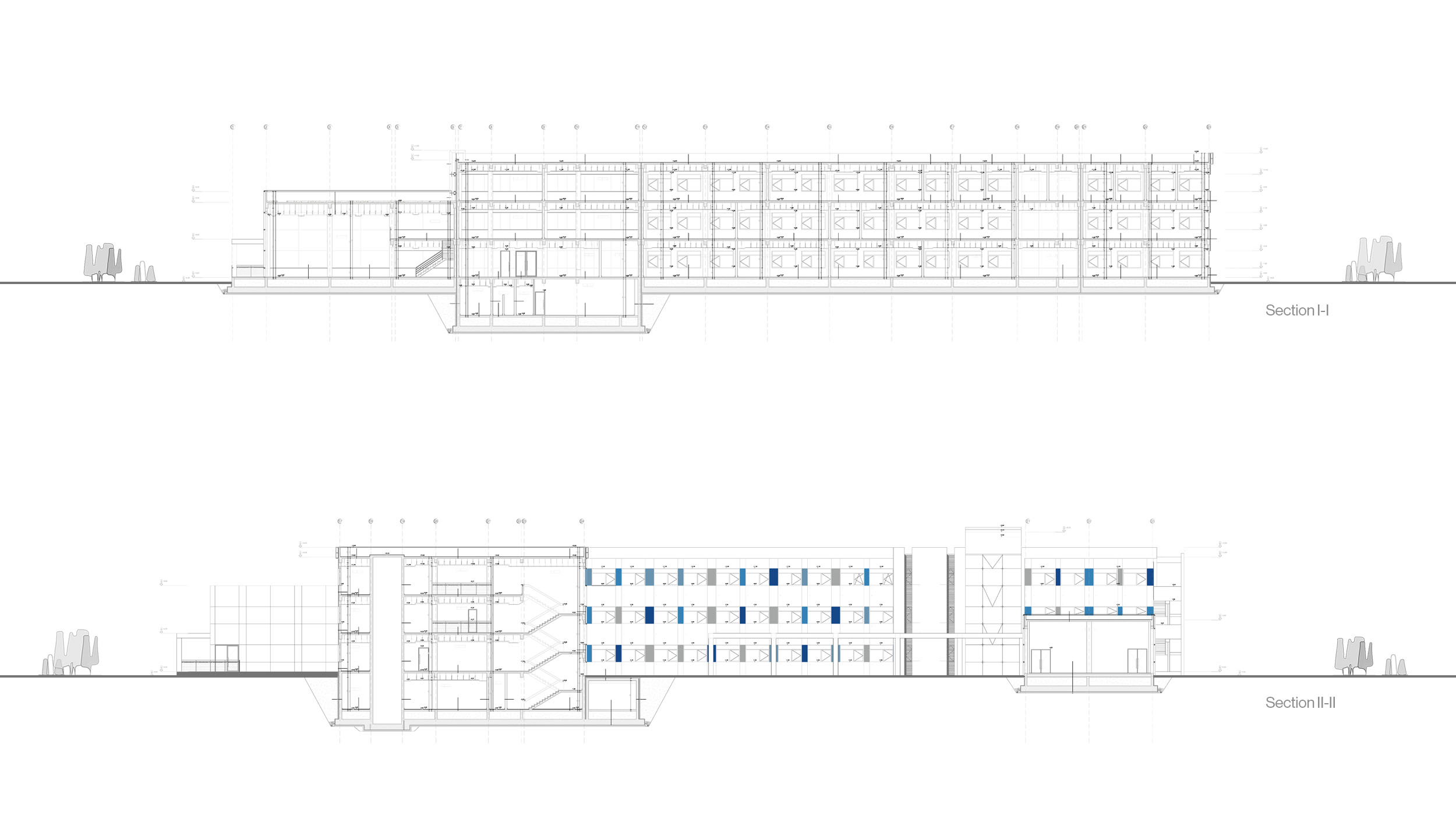
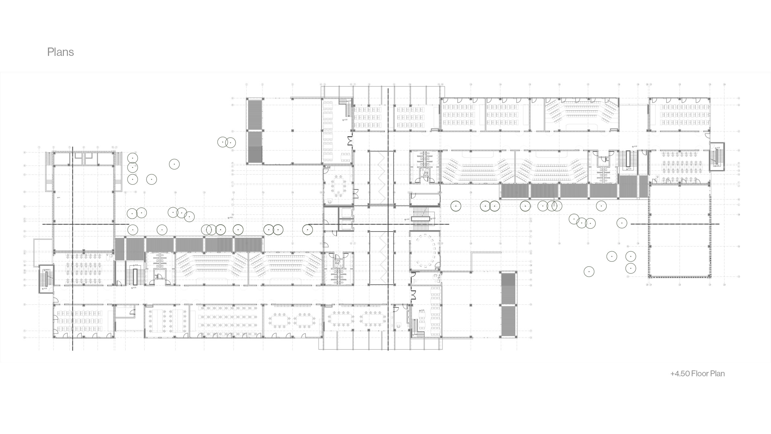
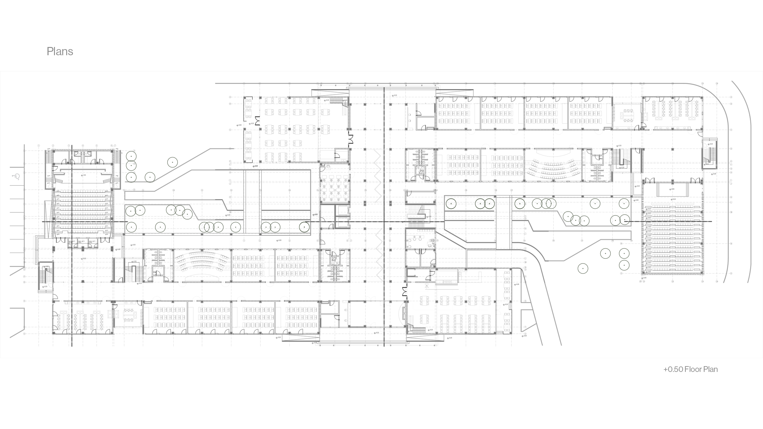
Yapı, kuzey ve güney yönlerinde konumlanan iki eş kütle şeklinde planlanmıştır. Her kütle, kendi içinde farklı eğitim branşlarını ve bunlara bağlı yardımcı ile tamamlayıcı birimleri barındırmaktadır. Toplamda 1 bodrum kat ve 3 normal kattan oluşan yapı kompleksi, fonksiyonel bir planlama kurgusu ile tasarlanmıştır:

Bodrum katta; teknik hacimler, sığınak, mutfak ve bağlı depo birimleri, 
Zemin katta: derslikler, laboratuvarlar, atölyeler, amfiler, 175 kişi kapasiteli çok amaçlı salon/konferans salonu ve yemekhane, 
1. katta: derslikler, laboratuvarlar ve atölyeler, 
2.katta: kütüphane, toplantı odaları, akademik personel odaları ve yönetim birimleri yer almaktadır.

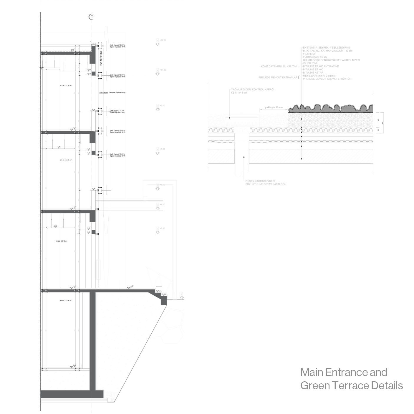
Ayrıca bu katta, genel kullanıma açık yeşil teraslara erişim sağlanmaktadır.
Mekânsal kurguda, geçici sergilere imkân veren geniş koridor ve galeri alanları öne çıkmakta; açık, yarı açık ve kapalı alanlar arasındaki hiyerarşi tasarımın öncelikli ilkelerinden biri olarak planlanmıştır.

Öğrencilerin kampüs içerisinde uzun süreler geçireceği dikkate alınarak, iç ve dış mekânlar arasındaki süreklilik güçlendirilmiş, sosyal etkileşim ve yaşam kalitesini artıracak nitelikte mekânsal çözümler geliştirilmiştir. Spor aktiviteleri ve sosyo-kültürel kullanımlara olanak sağlayan çevresel tasarım öğeleri ile yapı kompleksi bir bütünlük içinde zenginleştirilmiştir.
Seçilmiş Projeler
Anlamlı Girişimler
Çilimli Yüksekokulu
Düzce İli sınırlarında Çilimli ilçesinde planlanan proje, Düzce Üniversitesi tarafından yatırımı üstlenilmiş olup, tüm planlama sürecini ekibimiz üstlenmiştir. Çilimli Meslek Yüksekokulu, 7.000 m²'lik arsa üzerinde 1.900 m²'lik bir alanı kaplamakt...
Devamını Oku
Işıklar Mahalle Konağı
Proje, Konya ili, Selçuklu Belediyesi'ne bağlı Hocalıhan Mahallesi'nde yer almaktadır. Işıklar Kültür ve Spor Tesisi olarak isimlendirilen proje 2019 yılında, 463,16 m² taban alanı üzerine planlanmış olup, 2.631,54 m² toplam inşaat alanına sahipti...
Devamını Oku
Konya Sporcu Yetiştirme Merkezi
Toplam 20.360 m² kullanım alanına sahip olan kompleks, Konya-Selçuklu Belediyesi’nin ihtiyaçları doğrultusunda, 38.862 m²’lik arsa üzerinde Olimpiyat Oyunları için bir spor eğitim merkezi olarak tasarlanmıştır. Proje; spor, idari ve konaklama biri...
Devamını Oku